49 Cloudview Court Underway in Pittsboro

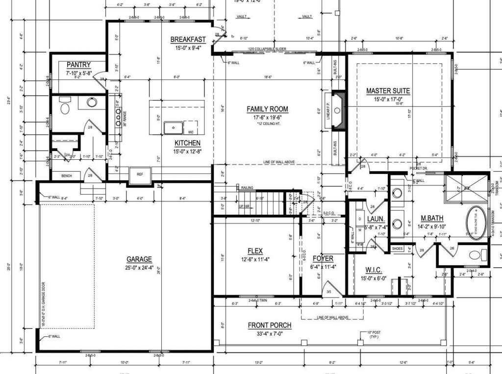
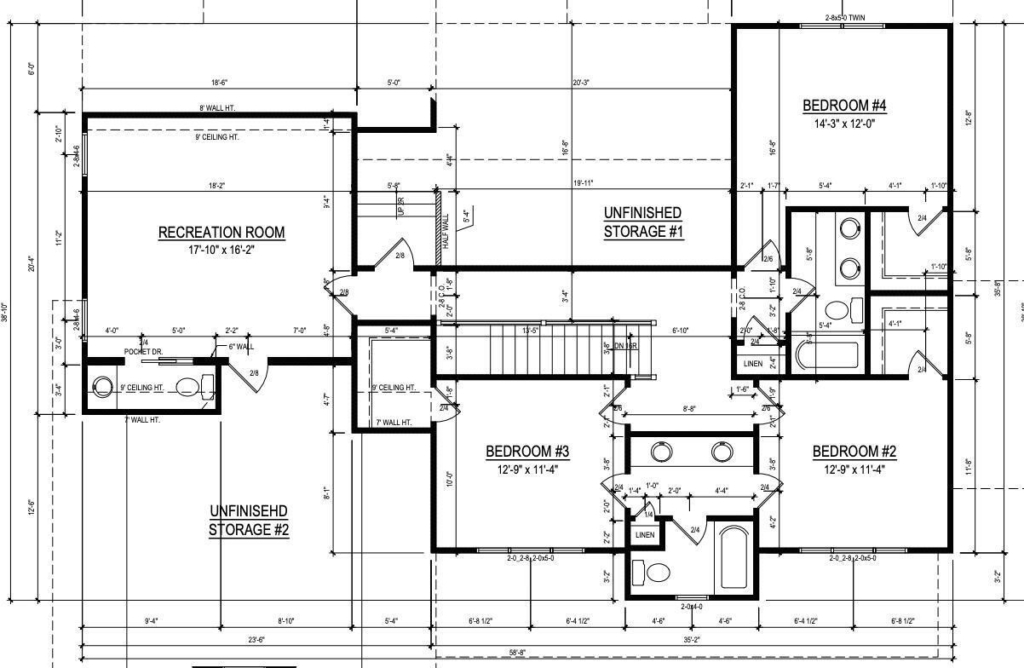
Construction is now underway at 49 Cloudview Court, located in the beautiful Parks at Meadowview in Pittsboro. Our team is hard at work bringing this Prewitt-Douglas custom home to life, designed to make a statement inside and out. This stunning 4 bedroom, 3.5 bath design features a 1st floor primary suite, a designer-inspired chef’s kitchen, and open living areas perfect for everyday living or entertaining. Upstairs, you’ll find three additional bedrooms, two full baths, and a huge storage area to meet all your needs. The large, flat lot provides the ideal setting for outdoor entertaining, complete with a covered porch and expansive backyard. From the high-quality finishes inside to the inviting outdoor space, this home is built for hosting family gatherings and creating lasting memories. Schedule a visit today with Sandy Savage at (919) 444-3699!






